Skleněný dům orientovaný do ulice Palackého je ukázkou spojení tradičního materiálu s moderním designem a technologií a symbolizuje návrat sebevědomého sklářství do regionu.
Skleněný dům orientovaný do ulice Palackého je ukázkou spojení tradičního materiálu s moderním designem a technologií a symbolizuje návrat sebevědomého sklářství do regionu.
Dvůr obklopený původními i novými stavbami se stává chráněnou „rajskou“ zahradou pro práci i odpočinek; vznikl zde také nový průchod pro veřejnost.
Dvůr obklopený původními i novými stavbami se stává chráněnou „rajskou“ zahradou pro práci i odpočinek; vznikl zde také nový průchod pro veřejnost.
Skleněný dům je srdcem firmy, funguje zároveň jako kavárna a jednací prostor.
Skleněný dům je srdcem firmy, funguje zároveň jako kavárna a jednací prostor.
Vnitřní prostor je obklopen policemi, které slouží jako knihovna a sklad skleněných vzorků; ve dne je prostor prozářen denním světlem, po setmění jsou police podsvíceny a dům vyzařuje světlo do okolí.
Vnitřní prostor je obklopen policemi, které slouží jako knihovna a sklad skleněných vzorků; ve dne je prostor prozářen denním světlem, po setmění jsou police podsvíceny a dům vyzařuje světlo do okolí.
Černý dům skrývá 13 m vysoký prostor s jeřábovou dráhou, otevřený do krovu; stavba může být v budoucnu doplněna o podlahy a přestavěna na kanceláře.
Černý dům skrývá 13 m vysoký prostor s jeřábovou dráhou, otevřený do krovu; stavba může být v budoucnu doplněna o podlahy a přestavěna na kanceláře.
Historické, památkově chráněné domy č. p. 170 a 171 byly renovovány, očištěny od nevhodných zásahů z osmdesátých let a adaptovány pro kancelářský provoz.
Historické, památkově chráněné domy č. p. 170 a 171 byly renovovány, očištěny od nevhodných zásahů z osmdesátých let a adaptovány pro kancelářský provoz.
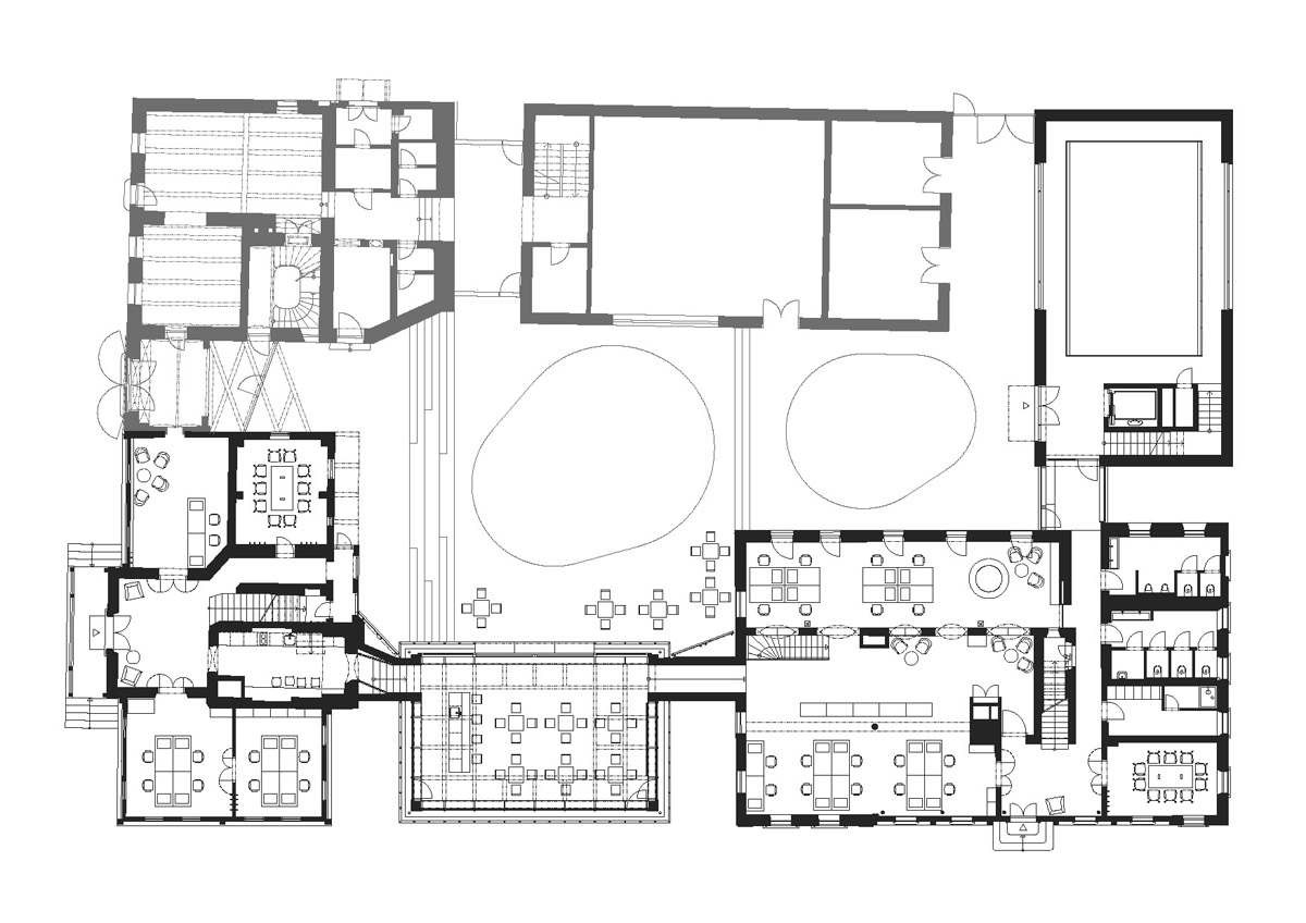
Site plan.
Site plan.
Ground floor.
Ground floor.
Upper floor.
Upper floor.
Longitudinal section.
Longitudinal section.

Crystals. The New Lasvit Headquarters in Nový Bor

Jiří Opočenský, Štěpán Valouch / ov-a

The strong local glassmaking tradition is reflected both in the work and design by Lasvit and in the architecture. Joining all the buildings together into one functional unit, the new design brings a contemporary interpretation of the typical two‑story glass maker's house. Two new abstractly shaped volumes with rectangular plans and gabled roofs were added next to the original protected 19th century houses. The glass building replaces a corridor that used to connect both historical houses, inside there is an office café, conference room, and sample library. The black building, at the back of the site, contains a three-story open space for the testing and presentation of 1:1 samples, glass objects which can weigh up to five tons.

Send e-mail back »


ERA21 vydává ERA Média, s. r. o.
Chleborádova 69/22, 619 00 Brno

Phone: +420 530 500 801
E-mail: redakce@era21.cz
Projekt se v roce 2026 uskutečňuje za finanční podpory: Ministerstva kultury ČR, Nadace české architektury, Statutárního města Brna a Státního fondu kultury ČR.
Copyright ©2004-2026 ERA Média, s.r.o
Použití článků a fotografií nebo jejich částí je bez souhlasu vydavatele zakázáno.

Information about cookies on this page

To get an idea of what you like to read, we use cookies on the website, which we process in accordance with the privacy policy. If you want to let us know what you are interested in, please give your consent to the processing of all types of cookies.

 

Cookie settings

The cookies that are used on this site are divided into categories and below you can find out more about each category and allow or deny some or all of them. Once you disable categories that were previously enabled, all cookies associated with that category will be deleted from your browser.