Klíčovým prostorem pro interakci mezi dětmi a seniory je zahrada; herní prvky jsou převážně přírodního charakteru – zatravněné valy, vyvýšené dřevěné lávky mezi bylinkami, vodní koryto s malými hrázemi.
Klíčovým prostorem pro interakci mezi dětmi a seniory je zahrada; herní prvky jsou převážně přírodního charakteru – zatravněné valy, vyvýšené dřevěné lávky mezi bylinkami, vodní koryto s malými hrázemi.
Podobně jako u domu s pečovatelskou službou umožňuje dispoziční řešení školky vstup dětí přímo do zahrady.
Podobně jako u domu s pečovatelskou službou umožňuje dispoziční řešení školky vstup dětí přímo do zahrady.
Jednotlivé „domky“ bytového objektu jsou opatřeny fasádou s rozdílnou zrnitostí omítky shodné barvy, což vytváří jemný rozdíl v odstínu v závislosti na směru dopadu slunečních paprsků.
Jednotlivé „domky“ bytového objektu jsou opatřeny fasádou s rozdílnou zrnitostí omítky shodné barvy, což vytváří jemný rozdíl v odstínu v závislosti na směru dopadu slunečních paprsků.
S výškovou regulací v území se projekt vyrovnává uložením podlahy přízemí do úrovně vnitřní zahrady, zatímco uliční fasáda je de facto zakopána a parapety oken jsou v úrovni stávajícího terénu.
S výškovou regulací v území se projekt vyrovnává uložením podlahy přízemí do úrovně vnitřní zahrady, zatímco uliční fasáda je de facto zakopána a parapety oken jsou v úrovni stávajícího terénu.
Mateřská škola se od bytových objektů odlišuje mimo jiné pojetím fasády.
Mateřská škola se od bytových objektů odlišuje mimo jiné pojetím fasády.
Vstupní část mateřské školy je v těsném sousedství hrany lesa.
Vstupní část mateřské školy je v těsném sousedství hrany lesa.
Zdivo mateřské školy je kryté dřevěným obkladem.
Zdivo mateřské školy je kryté dřevěným obkladem.
Zatímco vnější vzhled budov je jednoduchý a nekonkuruje okolní zeleni, vnitřní prostory jsou hravé tvarově i materiálově.
Zatímco vnější vzhled budov je jednoduchý a nekonkuruje okolní zeleni, vnitřní prostory jsou hravé tvarově i materiálově.
Kromě centrální herny je mateřská škola vybavena i komunitní místností pro pořádání menších akcí.
Kromě centrální herny je mateřská škola vybavena i komunitní místností pro pořádání menších akcí.
Střešní tvarosloví se propisuje i do interiéru, kde zvláště v herně školky vytváří velký otevřený prostor; díky oboustrannému velkému prosklení, k lesu i do zahrady, je zajištěno proslunění i dostatečné denní osvětlení.
Střešní tvarosloví se propisuje i do interiéru, kde zvláště v herně školky vytváří velký otevřený prostor; díky oboustrannému velkému prosklení, k lesu i do zahrady, je zajištěno proslunění i dostatečné denní osvětlení.
Směrem k hlučné silnici II. třídy jsou orientovány chodby, na fasádě to ale není znát.
Směrem k hlučné silnici II. třídy jsou orientovány chodby, na fasádě to ale není znát.
Společenská místnost v proskleném krčku spojujícím oba objekty s pečovatelskými byty může mimo jiné sloužit k mezigeneračnímu dialogu; spojení domu pro seniory s mateřskou školou k tomu přímo vybízí.
Společenská místnost v proskleném krčku spojujícím oba objekty s pečovatelskými byty může mimo jiné sloužit k mezigeneračnímu dialogu; spojení domu pro seniory s mateřskou školou k tomu přímo vybízí.
V interiéru bytů je hlavním estetickým prvkem obložení stěn březovou překližkou; všechny jednotky jsou upravitelné na plně bezbariérové.
V interiéru bytů je hlavním estetickým prvkem obložení stěn březovou překližkou; všechny jednotky jsou upravitelné na plně bezbariérové.
Pozemek pro výstavbu souboru budov je z jedné strany krytý lesem, z druhé navazuje na drobnou zástavbu.
Pozemek pro výstavbu souboru budov je z jedné strany krytý lesem, z druhé navazuje na drobnou zástavbu.
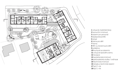
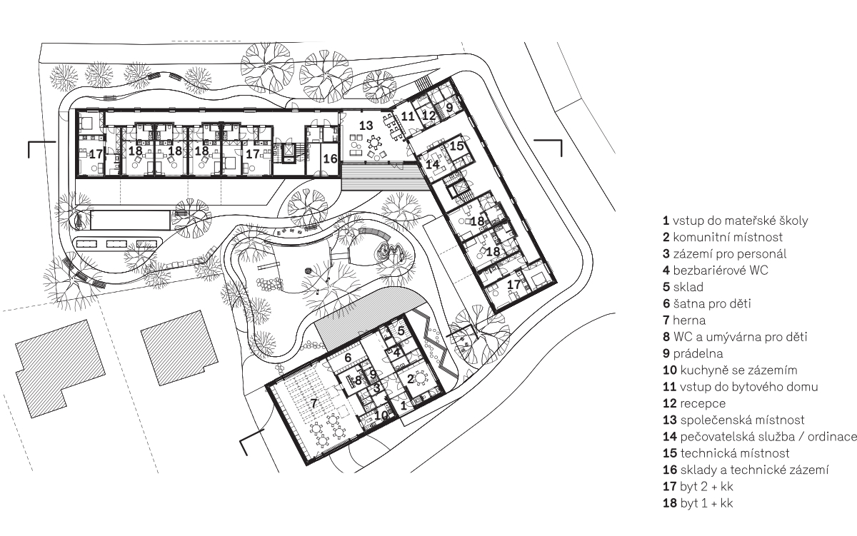
Site plan.
Site plan.
Section of the nursery.
Section of the nursery.
Section of the apartment building.
Section of the apartment building.
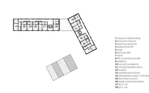
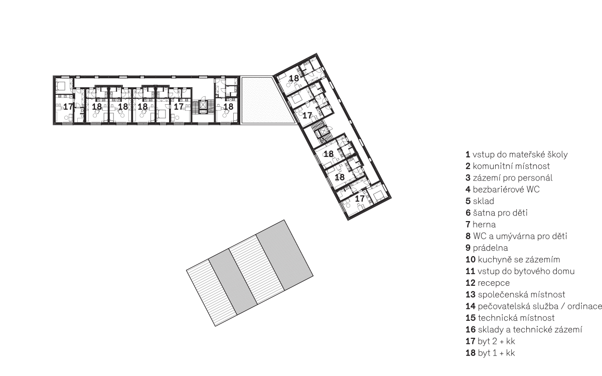
Ground floor plan.
Ground floor plan.
First floor plan.
First floor plan.
Second floor plan.
Second floor plan.


ERA21 vydává ERA Média, s. r. o.
Chleborádova 69/22, 619 00 Brno

Phone: +420 530 500 801
E-mail: redakce@era21.cz
Projekt se v roce 2026 uskutečňuje za finanční podpory: Ministerstva kultury ČR, Nadace české architektury, Statutárního města Brna a Státního fondu kultury ČR.
Copyright ©2004-2026 ERA Média, s.r.o
Použití článků a fotografií nebo jejich částí je bez souhlasu vydavatele zakázáno.

Information about cookies on this page

To get an idea of what you like to read, we use cookies on the website, which we process in accordance with the privacy policy. If you want to let us know what you are interested in, please give your consent to the processing of all types of cookies.

 

Cookie settings

The cookies that are used on this site are divided into categories and below you can find out more about each category and allow or deny some or all of them. Once you disable categories that were previously enabled, all cookies associated with that category will be deleted from your browser.