ERA21 #01/2016 Liberated Space

kniha editorial

Liberated Space

Petra Hlaváčková

» entire article
news

reviews

kniha detail

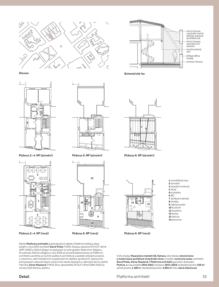
House with a Loft. Renovation and Modernization of a Late Art Nouveau House on Masarykovo Square in Ostrava »

David Průša, Alena Mazalová / Platforma architekti /

Built around 1910 according to the design by architect Felix Neumann, the late Art Nouveau house is part of the block development delimiting the main square in Ostrava. The original four-storey house, which is under a preservation order, with a mansard roof and decorated gable, has been generally renovated and modernized; the modifications consist mostly in the improvement of the interior environment while preserving the original spatial arrangement and expanding the usable area. The house is completed by an elevator and necessary social facilities. The most significant modification is a loft apartment taking up two floors, lightened by a newly installed glass wall that respects the original shape of the roof and contributes to the revitalization of the whole house, as well as the square with its modern conception.

» entire article
intro

Impermanent Structures »

Vessna Perunovich

In my art practice I work with issues of displacement, exile, the notion of mobility and transience. Elastic materials which carry with them the inherent quality of being “stretched” are a constant component in my installations, wall drawings, sculptural and performative practice. In this way my work addresses the notion of boundaries and limitations, underlying the need for stretching, reshaping and redefining the roles and confines which are put upon us as a society. By constructing architectural and virtual environments out of “feminine” materials I aim to create structures which are not only flexible, vulnerable and open, but also transitory, impermanent and spiritual in nature. In doing so, I intend to challenge the perception of architecture and constructed environments as embodiment of solidity, power and permanence.

theory

Critical Spatial Practice »

Jane Rendell

Published in the book Feminist Practices: Interdisciplinary Approaches to Women in Architecture, this essay is a reflection on the interdisciplinary nature of feminist architectonic practice and its connection with critical theory, pointing to the social and political associations of this approach which is transformative and creative by definition.

interview

Equally Shared City. Eva Kail Interviewed by Milota Sidorová »

At the beginning of the 1990s Eva Kail was one of the initiators of gender-sensitive planning in Vienna. Over more than twenty years, this approach, that focuses on the specific requirements of male and female users of public spaces, has been reflected in the creation of dozens of specific realizations, including parks, residential houses, and open spaces. During this period, the methods of gender mainstreaming have become one of the accepted tools enabling citizens’ engagement in city planning.

practice

Comfortable Streets. Pilot Project of Gender Mainstreaming in Mariahilf in Vienna »

In 2002, the 6th municipal district, Mariahilf, in Vienna was chosen for the pilot project of systematic testing of gender mainstreaming. Based on thorough analysis and the research of local specifics, a methodology was developed by the City of Vienna leading towards the better use of public space and transport with consideration for the needs of people with walking disabilities. This unique methodical approach was quickly reflected in the system of public transport planning in the whole district as well as neighboring areas.

completed project

All in One Park. Rudolf Bednar Park in Vienna »

Hager Partner AG

Rudolf Bednar Park in Leopoldstadt, Vienna was built on the basis of an architectonic competition organized in 2008 by Municipal Department 19 (MA 19)—Architecture and Urban Design to serve as a gender mainstreaming pilot project. The preparations for the competition also comprised several workshops with district administration employees, members of the Vienna Youth Association (Wiener Jugendzentren), and park monitoring services, the results of which were included in the tender documents. One of the criteria was to create differentiated smaller zones with various uses so that the park can be used by differently dominant groups simultaneously. The point was also to design partially shaded spots for recreation, continuous networks of paths for pedestrians, and their connections to other municipal districts.

interview

Social Aspect Lies Above Form. Julia Nuler Interviewed by Milota Sidorová »

As I see her, casually dressed with red sunglasses on her head, and ask her my initial question: why do we need women architects, she gives me this look and asks: why is this still such a crazy question? I realize we will focus on much more practical aspects of “being a woman architect.“ With Julia Nuler, architect, former synchronized swimmer and international judge in this discipline, I will speak about the ups and downs of her women architects only studio miss_vdr architektur, about flexibility, children, free time and stereotypes of (succesful) women/architects.

completed project

Our Space. Co-op Housing on Niederbarnimstraße, Berlin »

Christoph Wagner, Wenke Schladitz

ging demographics and diverse lifestyles call for flexible living spaces and quarters that are adaptable to the living realities of various user groups. Variable usage of space, a healthy range of rental rates and financing options, opportunities providing space for gainful employment, as well as facilities for commercial use, and for the care of children and senior citizens, all serve to further the social mix and reduce fluctuations in occupancy. The Co-op housing on Niederbarnimstraße, with twelve units and one communal space, is an example of gender- and age-open house open to people of all genders, ages, and from all over the world.

interview

Gender Mainstreaming in the Czech Context. Monika McGarrell Klimentová Interviewed by Petra Hlaváčková »

Representatives of many European cities are already aware that it is important to bear in mind the different needs of women and men during planning. Showing interest in the demands of the whole population is not only fair, but it also creates better public spaces and sustainable cities. In the Czech Republic, the main promoters of this approach were until recently non-profit organizations, but the situation is slowly changing. We talked with Monika McGarrell Klimentová about how to find out the real needs of male and female inhabitants of the Czech cities.

research

Women Public Space. Prague »

Milota Sidorová / Women Public Space. Prague /

While abroad gender equality in architecture, urbanism, and city planning is frequently discussed, in Prague there is no such discussion, much less a professional network connecting women from different professions with regard to an interdisciplinary approach to city planning and development of the city. Women Public Space. Prague was founded in the spring of 2015 as the response of seven women, primarily to inequality between women and men participating in projects related to architecture, urbanism and city planning in Prague. A pilot research carried out from March to June 2015 provides a deeper insight into the specific working conditions of women experts in Prague, and indicates key fields for future research.

initiative

Networking. Women’s Organizations in Architecture and Urbanism »

After women were allowed to study at universities and work as architects at the end of the 19th century, the first women's organizations began to emerge, with the aim of sharing experiences, educating, and creating a space for cooperation in the predominantly male working environment. These organizations are still dealing with barriers and inequalities in the architectonic profession today and, through professional women networking, they create an alternative to the patriarchal structures which women often have trouble getting into. We are bringing you a list of some of the important international organizations whose past or current activities are also aimed at research into city planning from a gender and social-critical perspective.

history

Do Not Laugh and Wave »

Pavel Pospěch

“A real lady walks up the street modestly shrouded in a robe. Her attire and her walk is discreet, she doesn’t do anything that could attract the attention of passers-by. She talks in a quiet voice, does not wave her hands when walking, she does not laugh. To avoid giving the impression of purposeless loitering she doesn't pause on the pavement—instead she walks in concentration and quickly towards her destination.” This description of everything that a real lady must have mastered while walking along a street comes from American social guidebooks from the early 1900s. These requirements are no different from what social handbooks advised Czechoslovak ladies in the same period.

research

Gender in Socialist Cities of Labor »

Blanka Nyklová

Between 1948 and 1989 the cultural environment of Socialist Czechoslovakia was affected by the emphasis put on industrial production and the associated mining and transformation of landscape. Part of this emphasis was also oriented on the development of industrial cities. Cities like Kladno, Ostrava, or later Most became symbols of modern progress, examples to be followed in every aspect of life, from youth education, work and work environment, housing, consumption, and leisure activities, to participation in political events and celebrations. One of the ways of communicating the idea of socialist progress was the official visual discourse.

research

Reforming Suburbs. Does New Urbanism Empower Women? »

Dan Trudeau, Charlotte Fagan

After two decades of New Urbanism’s efforts to reform American suburbs, besides hundreds of new places, a number of questions have arisen as to whether this movement for “intelligent” development has realized its objectives in the form of progressive, diversified, and sustainable communities. Our study, focused on two suburban districts in Minneapolis-St. Paul, has connected the developing main research to exploration of the real experience of New Urbanism.

practice

Scale: Woman. Architects’ Data by Ernst Neufert »

Kateřina Čechová, Adam Hašpica

This year sees the 80th anniversary of the first publication of of the famous manual for female and male architects. With every new publication the choice and order of topics is updated, along with the illustrations and the dimensions of some spaces. However, in many respects there have been no changes whatsoever, and thus female and male readers can enjoy the atmosphere of the good old days.

practice

PeeBetter. The Issue of Urinating in Public Spaces »

PeeBetter, Urgent.Agency

Peeing should be simple—and yet it can be incredibly difficult, especially if you are a girl at a festival, concert or an outdoor event in the city. The PeeBetter project consists of a series of prototypes, design solutions and ideas. Pollee is, an open‑air, no-touch urinal for women, StreetPee is a new type of urinal for men, which is connected directly to the sewer. The unique toilets concept was awarded the European City Challenge Award in 2012. A selection of prototypes is now being developed, tested and commissioned in Copenhagen.

idea

A Place of Her Own »

Cynthia Tom

Since 2009, A Place of Her Own has been an ongoing intuitive arts-based healing and transformative workshop series, culminating in a professional art exhibition. Encouraging women to take control of their own mental and spiritual well-being, Place promotes visual and verbal storytelling, supported by meditation. Through artistic media women are able to explore in depth and respond to the question, “If you had a place of your own, what would it be?” by unraveling beliefs that hold them back, excavating family patterns, discovering aspirations, and intuitively creating art through the use of found objects. The creation of art to support their inquiry inspires layers of personal exploration, surprising self-revelation, powerful community discussions, and individual and artistic transformation.

annex

International Trade Fair Aqua-Therm Prague 2016 »

The 21st international trade fair of heating, ventilating, air-conditioning, measuring, regulatory, sanitary and environmentally-friendly technology will take place at PVA EXPO PRAHA from March 1–4, 2016. The Aqua-Therm Prague trade fair is organized every two years and is the biggest trade fair of technical equipment in buildings in the Czech Republic. Currently there are over 200 exhibitors registered from more than fifteen countries and interest persists. After a successful restart in 2014, this year’s development indicates that the trade fair is regaining its prestige and status.

trends

annex

AMPER 2016 under the Sign of SMART CITY Technologies and Solutions »

From March 15–18, 2016 the Brno Exhibition Centre will host the 24th international trade fair of electrical engineering, electronics, automation, communication, lighting, and security, AMPER 2016. AMPER is the most important event of its kind in Central Europe and it is an ideal venue for such a concentration of supply, demand, and pure enthusiasm for technological innovations. The Trade Fair also includes the Smart City program, that offers presentation and promotion of products and technologies for smart cities, and the new project, Start up, which provides opportunities for planning new businesses.

annex

Acoustic Comfort in Relation to Construction Detail »

Petra Berková

For most people, an apartment, where they will spend a lot of time, is the biggest investment of their lives. Besides other things, the quality of living is reduced by acoustic discomforts caused by hidden construction defects. That is why in many European countries so-called acoustic classification has been introduced as a tool for the specification of acoustic environments.

annex

Swimming Pool Reconstruction—Solutions and Execution »

Marie Veselá

Swimming pool reconstruction is a topic that involves different approaches and solutions. The article focuses on the options that can be frequently encountered during reconstructions and which include specific conditions resulting from the commission, such as the object's current state, finances, and the investor’s wishes. A brief introduction to stainless steel, ceramic, and foil reconstruction, to the suitability of their use, and to construction techniques, aims to give the designer an initial grasp and to facilitate their making a decision as to which of the paths to take. It should also give a more specific idea of the duration of the reconstruction and its technical and financial demands.

completed project

Double Geometry. Administrative Building Enterprise Office Center in Prague »

Vladimír Krátký

The Enterprise Office Center is the latest building to be finished in the sought-after business and administrative Prague district of Pankrác. Being 40 meters high and 120 meters in length it has become the dominant landmark of this area, and, offering 30 000 m2 of rentable space, it ranks among the biggest administrative projects in Prague. The functional compact block is divided into two parts of different heights; a softly formed eastern wing follows the curve of the arterial road while, with its height, the orthogonal western wing connects visually to the neighboring Gemini object. Held between the two, there is a serene plaza with a small park and the entrance to the building.



ERA21 vydává ERA Média, s. r. o.
Chleborádova 69/22, 619 00 Brno

Phone: +420 530 500 801
E-mail: redakce@era21.cz
Projekt se v roce 2026 uskutečňuje za finanční podpory: Ministerstva kultury ČR, Nadace české architektury, statutárního města Brna a Státního fondu kultury ČR.
Copyright ©2004-2026 ERA Média, s.r.o
Použití článků a fotografií nebo jejich částí je bez souhlasu vydavatele zakázáno.

Information about cookies on this page

To get an idea of what you like to read, we use cookies on the website, which we process in accordance with the privacy policy. If you want to let us know what you are interested in, please give your consent to the processing of all types of cookies.

 

Cookie settings

The cookies that are used on this site are divided into categories and below you can find out more about each category and allow or deny some or all of them. Once you disable categories that were previously enabled, all cookies associated with that category will be deleted from your browser.